- HOME
- 施工事例一覧
- おうちまるごとリフォーム事例一覧
- 能美市 T様邸 おうちまるごとリフォーム事例
能美市 T様邸 おうちまるごとリフォーム事例
家族のこれからを考える家



リフォーム前![]() |
リフォーム後 |
リフォーム前のお施主様の悩み・ご要望
- 築50年の家。将来的なことを考え、二世帯住宅にしたい。
- リフォームか新築かを迷っている。リフォームでどこまでできるのか。
- お母様が日常的にデイサービスを利用しており、介護もふまえて考えたい。
- 将来的なことも考え、十分な駐車スペースを確保したい。

外観
リフォーム前![]() |
リフォーム後![]() 玄関の位置を変え、駐車場やアプローチデザインも含めたトータルでのご提案をしました。前面には4台分のカーポートを設けました。 |
玄関
リフォーム前![]() |
リフォーム後![]() 共有の玄関はデザイン和紙がポイントの和モダンな空間に...。 ![]() 玄関ホール飾棚背面は和紙のデザイン貼りとしました。飾棚は手摺り代わりにもなります。 ![]() 玄関スペースにはベンチも設けました。 |
リビング
リフォーム前![]() |
リフォーム後![]() 共有のLDKは南東に配置し、明るく風通しのよい快適な空間に...。 ![]() ほっと寛げる畳スペース。 ![]() 若世帯LDKを増築しました。吹き抜けがポイントです。階段を緩やかにかけ、階段下はデザイン収納を設けました。 ![]() 三角の手摺りは家具でつくり、手触りの優しさ、見た目のやわらかさにこだわりました。 |
キッチン
リフォーム前![]() ![]() |
リフォーム後![]() 対面キッチンでコミュニケーションがとれます。収納も充実しているので、キッチンをスッキリ保つことができます。 ![]() |
洗面脱衣所・サンルーム
リフォーム後![]() ![]() 洗面兼サンルームとなっているので毎日の家事がとってもスムーズです。 |
浴室・脱衣室
リフォーム前![]() |
リフォーム後![]() 若世帯用。勝手口を設けました。 ![]() 脱衣室にも十分な収納を...。 ![]() |
トイレ
リフォーム前![]() |
リフォーム後![]() ゆったりとしたトイレ空間。落ち着いた色味のシンプルな空間に珠洲焼の手洗いボウルがアクセントとなっています。 |
和室
リフォーム後![]() 仏間は位置を変えず、リフォーム前の面影を残しました。 |
寝室・書斎
リフォーム後![]() あえてドアを設けず、1階から2階へ風が抜ける設計。環境にやさしいパッシブな家となりました。 ![]() ![]() スキップフロアで2階の書斎へ。 ![]() ガラスでつながる無垢の天井がポイントとなっています。 |
解決方法・工夫点
- 築50年の既築部分を耐震補強、断熱をしました。またお母様のためのバリアフリー工事もしました。
- リフォームに適用できる補助金のご提案をしました。
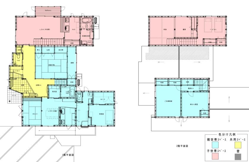
- 敷地奥に若世帯の住居を増築し、玄関共有型の二世帯住宅としました。
- 将来の計画も考慮したプランにしました。将来的にお孫さんの部屋が必要となった時には母屋2階の寝室を入替えするなどする、無駄のない間取りとしました。
- 玄関の位置をガラッと変え、駐車場やアプローチデザインも含めたトータルでのご提案をしました。
お施主様の感想

生活スタイルの変化
将来、二世帯同居となったときにも対応できる間取りとなりました。新たに若世帯住居部分ができたことで、ほど良い距離感も保てます。
リモデルしてスマイルになったこと
段差がなくなり、手摺りやベンチなどを必要なところに設けるなど家族が安心して暮らせる家となりました。機能的でありながら、デザイン性も高く、それでいて落ち着く、そんな空間になりました。













































