金沢市 H様 連続受賞事例
懐かしい実家バリアフリーリフォーム実現
日本住宅リフォーム産業協会デザインコンテスト第21回中部北陸支部(2013) バリアフリー賞



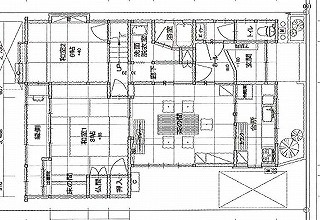
リフォーム前![]() |
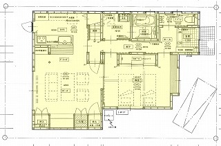
リフォーム後![]() |
リフォーム前のお施主様の悩み・ご要望
- 介護が必要となった両親が安心して暮らせる家にしたい
- 介護の為に同居できるようにしたい

外観
リフォーム前![]() |
リフォーム後![]() 既存台所部分を減築して、デイサービスの車が駐車できるようにしました。 |
玄関
リフォーム前![]() |
リフォーム後![]() 玄関スペースにも手摺りを設け、また浜床を設けることで段差も低くなり、上り下りも楽になりました。 |
リビング
リフォーム前![]() |
リフォーム後![]() 納戸になっていた和室と座敷をワンルームのLDKにしました。 ![]() ご両親が椅子の生活の為、大きめのソファタイプのダイニングテーブルとしました。 ![]() 光と風が入る窓際にはホスクリーンを設置しました |
ダイニングキッチン
リフォーム前![]() |
リフォーム後![]() キッチンカウンターにはご両親が使いやすいようにポットやオーブントースターを置けるようにしました。 |
洗面脱衣所
リフォーム前![]() |
リフォーム後![]() 広く明るい洗面脱衣スペース。 |
トイレ
リフォーム前![]() |
リフォーム後![]() 落ち着いた和の空間に調和する手摺りで安全性と機能性を確保しました。 |
寝室
リフォーム後![]() リビングに隣接する寝室。 ![]() 寝室にはカウンターを設けました。優しい日差しの下でゆっくりしていただけます。 |
解決方法・工夫点
- 既存の居間スペースを両親の寝室とし、寝室からトイレ、洗面、リビングへの動線を良くしました。温度差、風通しに配慮したプランとしました。
- リビングは椅子の生活のご両親の為、大きめのソファタイプのダイニングテーブルとすることで、食事後そのまま寛げます。また疲れたら隣接する寝室ですぐに横になることができます。
- 既存台所を減築し、デイサービスの車が停められるようにしました。
- キッチンカウンターはポットやオーブントースター等、ご両親がご自分で使いやすいよう設けました。
- お盆やお正月に家族が集まった時にも大きなテーブルを囲んで寛げるようになりました。
お施主様の感想
生活スタイルの変化
寝室からトイレへも行きやすくなり、洗面や食事の時も部屋間の移動が楽になりました。
リモデルしてスマイルになったこと
体が不自由になった父も極力自分のことはできています。退院後に家族が集まった時もゆったり快適に過ごすことができました。




































