輪島市門前町 H様邸 連続受賞事例
あいの風~風のとおる家~
TOTOリモデルスマイル作品コンテスト2011 機能向上プランニング 審査員奨励賞



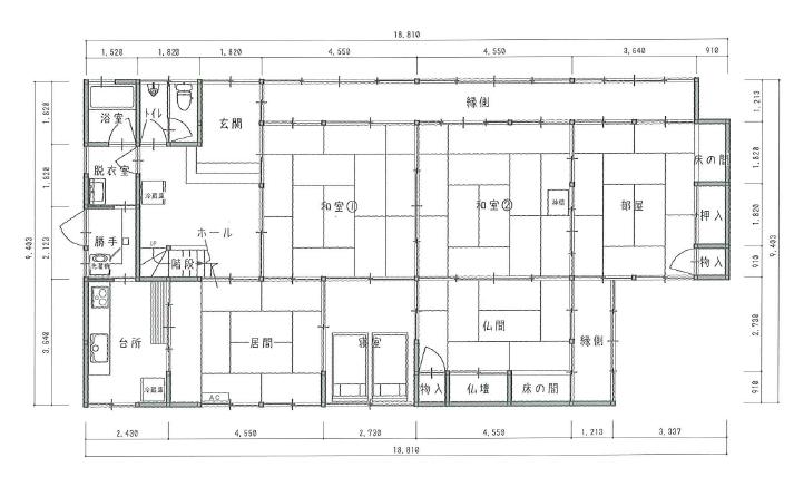
リフォーム前 |
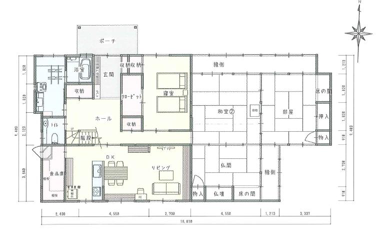
リフォーム後 |
リフォーム前のお施主様の悩み・ご要望
- 段差があり、将来のことを考えると危ない
- 台所に収納が少ない
- 床下から冷気が上がってきて、寒い
- 地震も経験したので、耐震が気になる

玄関
リフォーム前![]() |
リフォーム後![]() 既存の梁を見せて仕上げました。壁のニッチやご主人の趣味の写真を飾れるようにしたりと、ちょっとしたギャラリーにも...。 |
リビング
リフォーム前![]() |
リフォーム後![]() リビングのアクセントクロスが優しい印象。リビングの窓の対面に小窓をつけ、風の通り道をつくりました。オーダー家具で収納もたっぷりでスッキリ片付けられます。 |
ダイニングキッチン
リフォーム後![]() 対面キッチンでコミュニケーションもとれます。 |
食品庫
リフォーム後![]() キッチン裏には食品庫を設けました。勝手口から近く、とても便利になりました。キッチン食器棚+食品庫で十分な収納が確保されました。 |
洗面脱衣所
リフォーム前![]() |
リフォーム後![]() 雨の日用の物干しスペースも兼ねています。窓下には家事カウンターを取付ました。「洗って・干して・たたんで・しまえる」家事楽空間です。 |
トイレ
リフォーム前![]() |
リフォーム後![]() 手洗いカウンターは銘木&珠洲焼の手洗いボウル。趣があります。 |
小窓
リフォーム後![]() 「南北の風が気持ちいいんだよね~」とご主人。小窓で風の通り道をつくりました。こちらはLDK~玄関ホール。 ![]() 小窓をあけておけば、心地よい風が家の中を通り抜けます。 |
解決方法・工夫点
- 玄関からの段差も低くし、生活の中心となる部分は全ての段差をなくし、バリアフリーの空間に仕上げました。
- キッチン裏に沢山収納できる食品庫スペースをつくりました。
- 床・壁・天井に断熱施工をして、あたたかいお部屋になりました。
- 基礎のないところに基礎をして、筋交いや金物でしっかり補強しました。
お施主様の感想

生活スタイルの変化
リビングで趣味の写真をテレビに映し、のんびり鑑賞を楽しんでいます。キッチンに立っていても一つの空間にいられるので会話がはずみます。
リモデルしてスマイルになったこと
自然の風がす~っと家の中をとおり、気持ちがいいです。リビングの大きな窓から見る景色も気に入っていて、窓から四季を楽しめます。





























