金沢市 M様邸 連続受賞事例
優しいご夫婦の思いやり
TOTOリモデルスマイル作品コンテスト2010 トイレ 優秀賞



リフォーム前 |
リフォーム後 |
リフォーム前のお施主様の悩み・ご要望
- トイレが階段下になっているので、天井が低いし、狭い。。。介護ができないので将来が不安なトイレになっている。
- トイレの入口はドアで廊下が狭くなり、使いにくい。。。
- 寝室が2階にあるので、階段ののぼりおりが大変。。。
- いつもいる居間が暗い・・・。キッチンと居間が死角になっている為それぞれ孤独感を感じる空間になっている。みんなが一緒に集まれるところがない。居間が狭く孫が遊びにきたときに、孫達は和室にいたりとバラバラ。

トイレ
リフォーム前![]() |
リフォーム後![]() ご夫婦の優しさをイメージし、遊び心もいれてお月見をテーマに、優しい気持ちにさせてくれるトイレに仕上げました。月とウサギの色をイメージしたアクセント壁に、銘木のぬくもりカウンター♪ ![]() つまみも九谷焼で温もり感じる手作り。 ![]() 若手作家さんによる九谷焼きの器♪お月見をイメージしてデザインしたウサギが飛び出してきそう♪ |
ダイニングキッチン
リフォーム前![]() |
リフォーム後![]() 寝室までつながる生活動線が楽になりました。 |
リビング
リフォーム後![]() オープンキッチンにつながるリビングは、みんなが集まり楽しめる空間になりました♪ ![]() 二間続きの和室の欄間を、新たなかたちでリユースしました。暗かった廊下が明るく、丸見えの仏間がアクセントの飾りスリットに♪ |
解決方法・工夫点
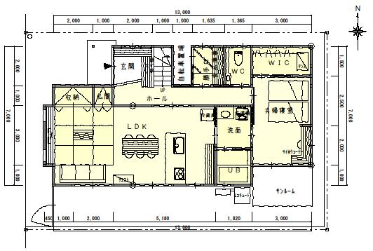
- トイレは、夜でもすぐにいけるように、寝室の近くに配置しました。将来の事を考慮しゆったりとした空間であたたかみのある空間にしました。
- 1階に寝室を配置し、1階で生活ができるような間取りに。入口は全て引き戸とし、今後ご夫婦が安心して暮らせるようにリフォームを計画しました。
- お家の中で一番明るい和室を、LDKとし、お孫さん達が遊びに来た時には、みんなでお食事が楽しめ、ひとつの空間で遊べるような広々空間をご提案しました。ぐるっと廻れる間取りで生活動線を考えました。
お施主様の感想

生活スタイルの変化
- トイレがこの家で一番お気に入りの場所になりました!天然の木目の優しさと、ぬくもりある優しいデザインが気にいっています。寝室からも近いので、夜も安心ししていけるようになり、夫婦や家族みんな喜んでいます。
- 1階が生活の中心になったので、今後は夫婦共にが安心して暮らせるリフォームになりました。温度差なく、LDK~洗面~寝室へいけるので楽になりました。
- セカンド玄関(勝手口)ができたので、買い物してきた時など出入りが楽になりました。
自転車も雨にぬれずおけるので嬉しいです。
リモデルしてスマイルになったこと
- 息子,娘の孫達合わせて大勢で集まることができる様になり、笑顔で過ごす事が多くなりました。ご主人とのコミュニケーションも増えましたし、友達が遊びにくるようになりました。今後の人生が楽しく過ごせそうです。
- トイレがみんな喜んでくれるので嬉しいわ。
将来の事を考えてスペースを広くするだけでなく、温かみがあって癒される空間になったわ。 - 節水にもなり、掃除がしやすくて嬉しいわ。
リフォームして快適になったし、安心ね。
























