七尾市 H様邸 連続受賞事例
〝家事楽♪〟な家
TOTOリモデルスマイル作品コンテスト2010機能向上プランニング優秀賞



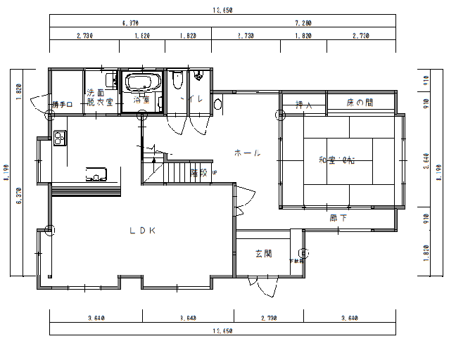
リフォーム前![]() |
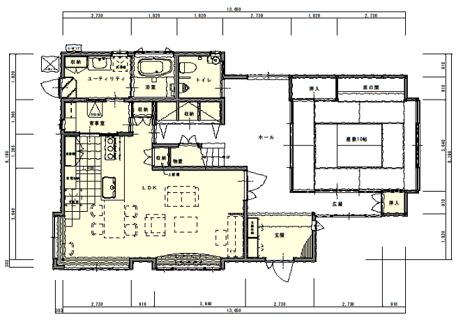
リフォーム後![]() |
リフォーム前のお施主様の悩み・ご要望
- 収納がまったくない家。片付けたくても片付ける場所がない。
- 家事動線も悪く、非効率的。

キッチン
リフォーム前![]() |
リフォーム後![]() 奥のパントリーにごちゃごちゃを片付けられるので、キッチンがすっきりします。機能的に◎♪キッチンまわりは、テラコッタタイル。 |
リビング
リフォーム前![]() |
リフォーム後![]() 床はメープル無垢フローリング |
家事室
リフォーム後![]() 充実度を高くしました。 ![]() 折りたたみ式アイロン台を設置し、使うときだけ、壁から起こして、使わないときは、壁の厚みの中に、納まるように設計しました。 |
トイレ
リフォーム後![]() トイレの手洗いは、オリジナル作品。娘様の大好きブルーを基調にした、モザイクタイルのカウンターに、シンプルなボウルを組み合わせて作りました。 |
洗面脱衣所
リフォーム後![]() 洗面横にオーダー家具。下部はOPENでカゴ類を入れる。上部は扉をつけて、乾いた下着類を収納。 |
解決方法・工夫点
- 収納は小分けに設けて、それぞれ必要な箇所に設置。
- 家事室を設けて、水まわり動線を確保し、収納空間の中に動線を設ける。
- 動線をぐるぐる廻れる動線にして、行き止まりをなくし、スムーズに動けるようにした。
お施主様の感想
生活スタイルの変化
お客様が来ても、さっと片付けられる家事室ができたことで、時間にも、心にもゆとりができました。
片付けやすい収納ができたので、普段からお部屋をすっきりひろびろ使うことができます。これまで片付けたくても、片付ける場所がない、という不満が解消され、リフォーム前より、ワンランクアップした生活スタイルを築けそうです。



























